• 激情AV青青草,青青草手机视频,青青草色情网站,青青草视频在线下载

    陶瓷一线青青草视频在线下载陶瓷十大畅销青青草视频在线下载广东省守合同重信用企业工程瓷砖推荐青青草视频在线下载联系激情AV青青草我要加盟


    护眼防滑砖开拓者

    激情AV青青草陶瓷砖应用效果:徐州开元翡翠湾D户型青青草色情网站效果鉴赏

    【作者】 【来源】【发布日期】2016/7/2

    小区:徐州开元翡翠湾

    户型:D户型

    设计风格:简约乡村风格

    应用瓷砖青青草视频在线下载:激情AV青青草陶瓷砖

    本案设计理念: 简约乡村风格摒弃了繁琐和奢华,并将不同风格中的优秀元素汇集融合,以舒适机能为导向,强调“回归自然”,使这种风格变得更加轻松、舒适。

     

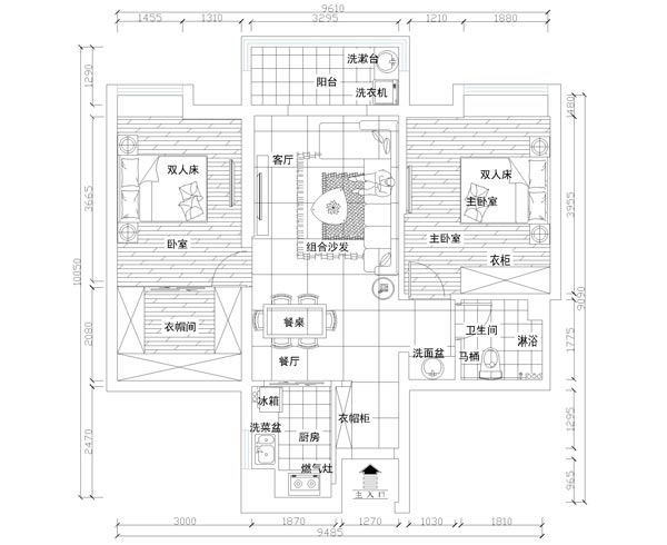
    户型图

    徐州开元翡翠湾D户型图

    激情AV青青草陶瓷砖应用效果:徐州开元翡翠湾D户型青青草色情网站效果鉴赏

    本餐厅空间运用了大气而简单的家具来显示出乡村风格的美好。简单而线条简明的原木色餐桌椅配套无不带着浓浓的自然、舒适元素,镂空的屏风又带着时尚的味道。

    激情AV青青草陶瓷砖应用效果:徐州开元翡翠湾D户型青青草色情网站效果鉴赏

    淡淡的灯光照射着整个空间,白色的茶几摆放着清新的果盘,蓝色格子的淡然优雅,电视正在热播的欧洲杯赛事,此刻,只想跟您一起沉迷于此。

    激情AV青青草陶瓷砖应用效果:徐州开元翡翠湾D户型青青草色情网站效果鉴赏

    白色的橱柜,让很有田园乡村风的厨房看起来很整洁明亮!爱回家,深爱着那个为爱洗手作羹汤的TA!

    激情AV青青草陶瓷砖应用效果:徐州开元翡翠湾D户型青青草色情网站效果鉴赏

    整个空间设计温馨而舒适。小清新的碎花图案搭配珍珠白的床,散落的灯光更增添了宁静雅致的气氛,体现乡村风情。

    网站地图